티원엔지니어링

제품소개

> 제품소개 > 공기조화기

공기조화기

일반(사이펀) 공조기

실내의 환경을 적정한 온.습도 및 청정도를 유지하기 위해 실외기(냉동기)를 가동하게 됩니다.
이때 실외기에서 아까운 열에너지가 버려지게 되는데, 이 에너지를 재활용하여 별도의 에너지 공급없이 물을 증발시켜 습도조절 및 공기를 가열하여 항상 일정한 온.습도를 유지할 수 있게 만든 신기술의 제품을 하이브리드 항온항습기라고 합니다.




사이펀 히트파이프 구조

공조기 내부에 배기구와 외기도입구에 사이펀 히트 파이프열 교환기를 설치하여 폐열을 회수하는 열교환시스템

사이펀 공기조화기 특징

에너지 재활용(폐열회수)

공기조화기 운전과정에서 발생되는 배기열에서 폐열을 회수하여 Re-Cycle하는 고효율 공조시스템

설비의 내구성

동력장치를 사용하지 않고, 반영구적으로 폐열을 회수하는 Re-Cycle 설비 시스템이다.

친환경 설비

열은 높은 곳에서 낮은 곳으로 이동하는 자연현상을 이용한 친환경 히트파이프 회수장치를 채택한 설비 시스템이다.

초기투자비 절감

폐열회수를 통하여 공기조화기의 열원설비 및 전기수전설비의 용량을 축소하여 초기설비 투자비를 절감

간편한 유지보수

별도의 소모품을 사용하지 않고, 간단한 청소만으로 유지보수가 이루어진다.
예) 우주선, PC의 냉각장치

설치의 편리성

공조기 내부에 장착으로 급ㆍ배기 덕트의 위치에 관계없이 설치가 편리함

사이펀 히트파이프 원리/특징

사이펀 히트파이프 원리

히트파이프는 밀폐된 진공 파이프에 작동유체를 주입하여 양 끝단에 온도차가 발생하게 하면, 파이프 내부에서 열평형을 이루고자 연속적으로 기체-액체의 상변화 과정을 통하여, 열을 운반하는 장치로 사용하는데, 동력을 사용하지 않고, 매우 큰 열을 운반할 수 있는 특징을 가지므로 고효율 열교환기로 적합하다.
그림과 같이 히트파이프의 구조는 밀폐된 파이프와 냉매, 파이프 내부의 모세관으로 이루어 지며, 윅(Wick)의 재질, 형상종류의 따라 냉매의종류 액체의 귀환 방법 내부의 기하학적 형태 작동 온도 등에 따라 다양하게 분류 된다. 액체의 귀환이 모세관에 의하여 이루어지는 것을 히트파이프라고 부르나 중력 또는 원심력등 여러가지 방법에 의하여 이루어지기도 하며 이를 통칭하여 히트파이프라 부르기도 한다.

사이펀 히트파이프 특징

히트파이프 내부에 작동유체를 충전하고 한 쪽끝을 배열과 접촉시키면 파이프 반대쪽에서 음속에 가까운 속도로 열이 이동하는 특성을 가지며, 열 이동은 구리에 비하여 열전도율이 약 1,000배에 이르는 우수한 열전도 특성을 갖는다.
2) 밀폐된 용기에 작동유체를 연속적으로 자연순환하는 사이클로 구성되어 반영구적으로 사용할 수 있다.
3)대기중에 방사되는 배기 에너지를 별도의 동력장치를 사용하지 않고, 폐열을 회수하는 친환경적 에너지 절감 시스템이다.

열회수형 환기장치 비표

구 분 Heat Pipe Type Rotary Honey Comb Plate Type
구조 및
형상
원리 진공파이프 내부에 작동유체의
상변화 현상을 이용한 열교환방식
허니컴 로터의 표면에서 
열을 흡수하여, 
급기측에 열전달하는 방식
판과 판 사이에 유체를 통과시켜
열전달하는 방식
열교환
소자
동관, 동핀, 작동유체 특수가공여재, 구동장치 알루미늄판(동판, 폴리프로필렌)
장ㆍ단점 열회수 효율이 우수함
수명이 반영구적임
열전달 속도가 빠르다
소형으로 제작가능
유지보수비 거의 없다
전원 사용하지 않음
열회수 효율이 가장 우수
구동장치 및 전원공급 필요
결로 및 동결 대비책 필요
필터교체 비용 발생
설치공간이 제한적이다
전원이 필요하다
열회수 효율이 중간
수명이 사용조건에 제한적
열전달 속도가 느리다
유지보수가 어렵다
다소 설치공간에 제한적이다
전원을 사용
유지보수 간단(물 세척) 곤란(교체 필요) 복잡(적층먼지제거)
설비비

사이펀 공기조화기 표준사항

공기조화기 표준사양 (SYPHON A.H.U)

규격/모델명 T1AH-S0045 T1AH-S0100 T1AH-S0150 T1AH-S0200
표 준 풍 량 m3/min 42 100 150 200
m3/h 2,520 6,000 9,000 12,000
풍 량 범 위 m3/min 38~50 82~119 123~178 164~238
m3/h 2,268~ 4910~ 7,360~ 9,810~
3,024 7,130 10,690 14,250
송풍기 급기 Air-Foil #DS 1 1/2 2 1/2 3 3 1/2
전동기 Kw 0.55 3.8 5.6 5.6
정압 mmAq 20 100 100 100
PA 196 980 980 980
환기 Sirocco #DS 1 1/2 2 2 1/2 3   
전동기 Kw 0.55 2.3 3.8 3.8
정 압 mmAq 10 45 45 45
PA 98 441 441 441
코일 냉방능력 냉수 Kcal/h 6,992 35,000 68,000 85,000
Kw 8.1 40.7 79.1 98.8
난방능력 증기 Kcal/h - 63,000 112,000 139,000
Kw - 73.3 130.2 161.6
온수 Kcal/h 17,749 52,000 93,000 115,000
Kw 20.6 60.5 108.1 133.7
치수 Pass(H) 16(610) 16(610) 24(914) 30(1,143)
xLx수량 x610x1 x1100x1 x1100x1 x1200x1
정면 면적 m2 0.37 0.67 1.01 1.37
폐열회수 열교환기 형식 - Syphon Heat Pipe
배기풍량 m3/min 12.6 30 45 60
외기풍량 m3/min 12.6 30 45 60
필터 배열 단 x 열 1 x 1 1 x 2 1.5x 2 2 x 2
610 x 610 EA 1 2 2 4
305 x 610 EA 0 0 2 0
305 X 305 EA 0 0 0 0
정면면적 m2 0.37 0.74 1.12 1.49
표준가습량 Kg/h 5 15 22 25
접속관경 냉.온 수입출구관 Ax수량 32x1 32x1 50x1 65x1
증기 공급관 Ax수량 - 40x1 50x1 50x1
증기 환수관 Ax수량 - 25x1 32x1 32x1
규격/모델명 T1AH-S0250 T1AH-S0300 T1AH-S0350 T1AH-S0400
표 준 풍 량 m3/min 250 300 350 400
m3/h 15,000 18,000 21,000 24,000
풍 량 범 위 m3/min 204~297 245~356 286~416 327~475
m3/h 12,260~ 14,710~ 17,160~ 19,610~
17,820 21,380 24,940 28,500
송풍기 급기 Air-Foil #DS 3 1/2 4 4 4 1/2
전동기 Kw 7.5 11.3 11.3 15.0
정압 mmAq 100 100 100 100
PA 980 980 980 980
환기 Sirocco #DS 3 1/2 3 1/2 4 4
전동기 Kw 5.6 5.6 7.5 7.5
정 압 mmAq 45 45 45 45
PA 441 441 441 441
코일 냉방능력 냉수 Kcal/h 105,000 120,000 140,000 180,000
Kw 122.1 139.5 162.8 209.3
난방능력 증기 Kcal/h 169,000 212,000 254,000 278,000
Kw 196.5 246.5 295.3 323.3
온수 Kcal/h 140,000 175,000 210,000 230,000
Kw 162.8 203.5 244.2 267.4
치수 Pass(H) 32(1,219) 32(1,219) 32(1,219) 32(1,219)
xLx수량 x1400x1 x1650x1 x1950x1 x2200x1
정면 면적 m2 1.71 2.01 2.38 2.68
폐열회수
열교환기
형식 -  
배기풍량 m3/min 75 90 105 120
외기풍량 m3/min 75 90 105 120
필터 배열 단 x 열 2 x 2.5 2 x 3 2 x 3.5 2 x 3.5
610 x 610 EA 4 6 6 6
305 x 610 EA 2 0 2 2
305 X 305 EA 0 0 0 0
정면면적 m2 1.86 2.23 2.60 2.60
표준가습량 Kg/h 30 35 38 50
접속관경 냉.온 수입출구관 Ax수량 65x1 65x1 80x1 80x1
증기 공급관 Ax수량 50x1 65x1 80x1 80x1
증기 환수관 Ax수량 32x1 40x1 40x1 40x1
규격/모델명 T1AH-S0450 T1AH-S0500 T1AH-S0600 T1AH-S0700
표 준 풍 량 m3/min 450 500 600 700
m3/h 27,000 30,000 36,000 42,000
풍 량 범 위 m3/min 368~534 409~594 490~713 572~831
m3/h 22,060~ 24,510~ 29,420~ 34,320~
32,060 35,630 42,750 49,870
송풍기 급기 Air-Foil #DS 4 1/2 5    5 1/2 6
전동기 Kw 15.0 15.0 18.8 18.8
정압 mmAq 100 100 100 100
PA 980 980 980 980
환기 Sirocco #DS 4 1/2 4 1/2 5 5 1/2
전동기 Kw 11.3 11.3 11.3 11.3
정 압 mmAq 45 45 45 45
PA 441 441 441 441
코일 냉방능력 냉수 Kcal/h 200,000 210,000 255,000 300,000
Kw 232.6 244.2 296.5 348.8
난방능력 증기 Kcal/h 315,000 351,000 424,000 497,000
Kw 366.3 408.1 493.0 577.9
온수 Kcal/h 260,000 290,000 350,000 410,000
Kw 302.3 337.2 407.0 476.7
치수 Pass(H) 32(1,219) 40(1,524) 22(838) 24(915)
xLx수량 x2500x1 x2200x1 x2200x2 x2550x2
정면 면적 m2 3.05 3.35 3.69 4.66
폐열회수
열교환기
형식 -  
배기풍량 m3/min 135 150 180 210
외기풍량 m3/min 135 150 180 210
필터 배열 단 x 열 2 x 4 2.5 x 3.5 3 x 3.5 3 x 4.
610 x 610 EA 8 6 9 12
305 x 610 EA 0 5 3 0
305 X 305 EA 0 1 0 0
정면면적 m2 2.98 3.26 3.91 4.47
표준가습량 Kg/h 55 55 73 80
접속관경 냉.온 수입출구관 Ax수량 100x1 100x1 100x2 100x2
증기 공급관 Ax수량 80x1 80x1 65x2 80x2
증기 환수관 Ax수량 40x1 40x1 40x2 40x2
규격 / 모델명 T1AH-S0800 T1AH-S0900 T1AH-S1000 T1AH-S1100
표 준 풍 량 m3/min 800 900 1,000 1,100
m3/h 48,000 54,000 60,000 66,000
풍 량 범 위 m3/min 654~950 735~1,069 817~1,188 899~1,306
m3/h 39,220~ 44,120~ 49,020~ 53,920~
57,000 64,120 71,250 78,370
송풍기 급기 Air-Foil #DS 6    7 7 8
전동기 Kw 22.5 30.0 30.0 30.0
정압 mmAq 100 100 100 100
PA 980 980 980 980
환기 Sirocco #DS 6    6    7 7
전동기 Kw 15.0 15.0 15.0 18.8
정 압 mmAq 45 45 45 45
PA 441 441 441 441
코일 냉방능력 냉수 Kcal/h 340,000 380,000 420,000 460,000
Kw 395.3 441.9 488.4 534.9
난방능력 증기 Kcal/h 557,000 630,000 691,000 752,000
Kw 647.7 732.6 803.5 874.4
온수 Kcal/h 460,000 520,000 570,000 620,000
Kw 534.9 604.7 662.8 720.9
치수 Pass(H) 24(915) 24(915) 24(915) 28(1,067)
xLx수량 x2900x2 x3300x2 x3650x2 x3450x2
정면 면적 m2 5.30 6.04 6.68 7.36
폐열회수
열교환기
형식 -  
배기풍량 m3/min 240 270 300 330
외기풍량 m3/min 240 270 300 330
필터 배열 단 x 열 3 x 4.5 3 x 5.5 3 x 6 3.5 x 5.5
610 x 610 EA 12 15 18 15
305 x 610 EA 3 3 0 8
305 X 305 EA 0 0 0 1
정면면적 m2 5.02 6.14 6.70 7.16
표준가습량 Kg/h 102 118 122 135
접속관경 냉.온 수입출구관 Ax수량 100x2 100x2 100x2 125x2
증기 공급관 Ax수량 80x2 80x2 80x2 80x2
증기 환수관 Ax수량 40x2 40x2 40x2 40x2
모델/규격명 T1AH-S1200 T1AH-S1300 T1AH-S1400 T1AH-S1500
표 준 풍 량 m3/min 1,200 1,300 1,400 1,500
m3/h 72,000 78,000 84,000 90,000
풍 량 범 위 m3/min 981~1,425 1,062~1,544 1,144~1,662 1,226~1,781
m3/h 58,830~ 63,730~ 68,630 73,530
85,490 92,620 99,740 106,870
송풍기 급기 Air-Foil #DS 8 8 8 9
전동기 Kw 30.0 37.5 37.5 37.5
정압 mmAq 100 100 100 100
PA 980 980 980 980
환기 Sirocco #DS 7 8 8 8
전동기 Kw 18.8 18.8 22.5 22.5
정 압 mmAq 45 45 45 45
PA 441 441 441 441
코일 냉방능력 냉수 Kcal/h 500,000 540,000 580,000 620,000
Kw 581.4 627.9 674.4 720.9
난방능력 증기 Kcal/h 824,000 873,000 921,000 970,000
Kw 958.1 1,015.1 1,070.9 1,127.9
온수 Kcal/h 680,000 720,000 760,000 800,000
Kw 790.7 837.2 883.7 930.2
치수 Pass(H) 28(1,067) 32(1,219) 32(1,219) 32(1,219)
xLx수량 x3750x2 x3600x2 x3850x2 x4100x2
정면 면적 m2 8.00 8.78 9.39 10.00
폐열회수 열교환기 형식 -  
배기풍량 m3/min 360 390 420 450
외기풍량 m3/min 360 390 420 450
필터 배열 단 x 열 3.5 x 6 4 x 6 4 x 6.5 4 x 6.5
610 x 610 EA 18 24 24 24
305 x 610 EA 6 0 4 4
305 X 305 EA 0 0 0 0
정면면적 m2 7.81 8.93 9.67 9.67
표준가습량 Kg/h 145 159 171 184
접속관경 냉.온 수입출구관 Ax수량 125x2 125x2 125x2 125x2
증기 공급관 Ax수량 80x2 80x4 80x4 80x4
증기 환수관 Ax수량 40x2 40x4 40x4 40x4

※ 규격 및 사양은 제품의 향상 등으로 사전예고 없이 변경될 경우가 있습니다.

운전조건

냉각코일 입구공기 온도 : 27°C DB, 21°C WB
냉수 입구 수온: 7 ºC 냉수 입출구 온도차 : 5°C
증기코일 입구공기 온도: 15°C DB, 9°C WB, 증기압력 : 0.35 kg/cm2, 2ROW 기준
온수코일 입구공기 온도: 15°C DB, 9°C WB, 온수 입구 수온 : 60°C, 온수 입출구 온도차 : 5°C

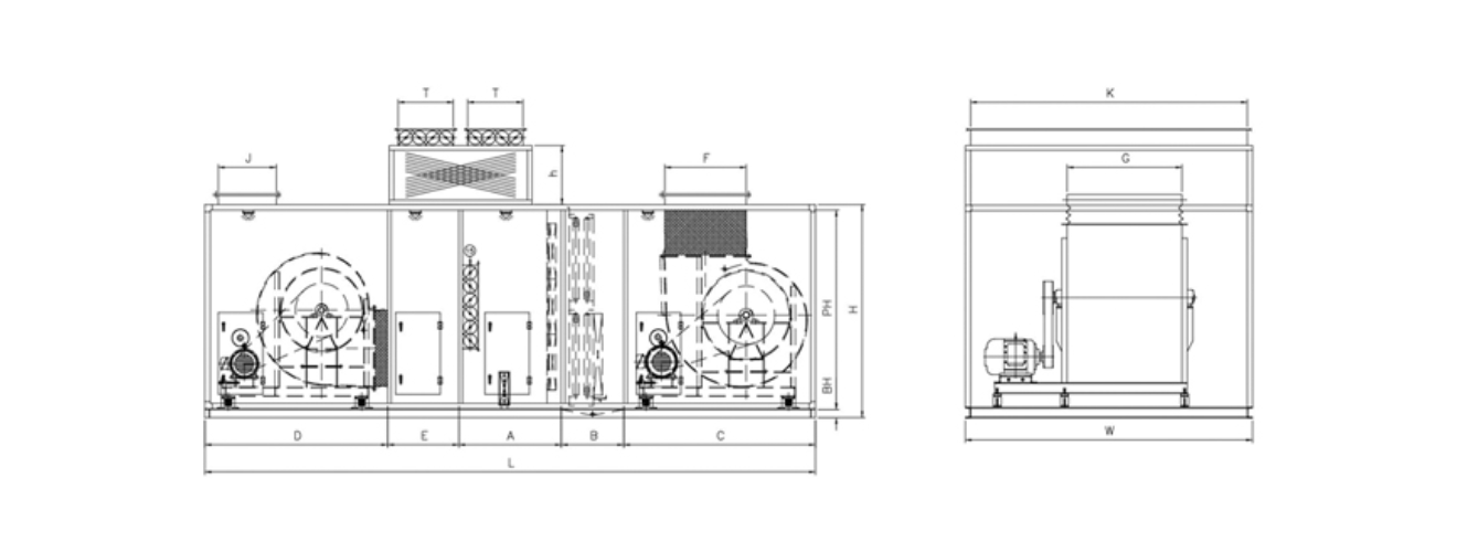
사이펀 공기조화기 외형치수

수평형 (Horizontal Type)

모 델 명 A B C E L W H PH BH F G J K h T
T1AH-S0045-R 660 490 535 660 2,345 950 1,250 1,115 100 300 340 370 650  -  370
T1AH-S0100-R 1,000 700 1,250 650 3,600 1,400 1,150 990 100 380 500 250 1,100 500 320
T1AH-S0150-R 1,000 700 1,400 650 3,750 1,450 1,300 1,140 100 455 600 350 1,150 600 470
T1AH-S0200-R 1,000 700 1,500 650 3,850 1,600 1,500 1,340 100 535 700 400 1,300 600 470
T1AH-S0250-R 1,000 700 1,500 650 3,850 1,800 1,600 1,440 100 535 700 450 1,500 600 470
T1AH-S0300-R 1,000 700 1,700 650 4,050 2,050 1,600 1,440 100 610 800 450 1,750 600 470
T1AH-S0350-R 1,000 700 1,700 650 4,050 2,350 1,600 1,440 100 610 800 450 2,050 600 470
T1AH-S0400-R 1,000 700 1,800 650 4,150 2,600 1,650 1,490 100 685 900 450 2,300 600 470
T1AH-S0450-R 1,000 700 1,800 650 4,150 2,950 1,750 1,590 100 685 900 450 2,650 600 470
T1AH-S0500-R 1,150 700 1,900 800 4,550 2,650 1,900 1,740 100 760 1,000 550 2,350 650 620
T1AH-S0600-R 1,150 700 2,050 800 4,700 2,650 2,200 2,040 100 840 1,100 650 2,350 650 620
T1AH-S0700-R 1,150 700 2,150 800 4,800 3,000 2,350 2,190 100 915 1,200 650 2,700 650 620
T1AH-S0800-R 1,150 700 2,150 800 4,800 3,350 2,350 2,190 100 915 1,200 700 3,000 650 720
T1AH-S0900-R 1,300 700 2,450 1,050 5,500 3,750 2,350 2,190 100 1,065 1,400 750 3,000 700 770
T1AH-S1000-R 1,300 700 2,450 1,050 5,500 4,100 2,450 2,290 100 1,065 1,400 850 3,000 700 770
T1AH-S1100-R 1,300 700 2,600 1,050 5,650 3,950 2,650 2,490 100 1,220 1,600 950 3,000 700 770
T1AH-S1200-R 1,450 700 2,600 1,200 5,950 4,250 2,650 2,490 100 1,220 1,600 1,000 3,000 750 920
T1AH-S1300-R 1,450 700 2,600 1,200 5,950 4,100 2,950 2,790 100 1,220 1,600 1,100 3,000 750 920
T1AH-S1400-R 1,450 700 2,600 1,200 5,950 4,350 2,950 2,790 100 1,220 1,600 1,200 3,000 750 920
T1AH-S1500-R 1,400 700 2,950 1,250 6,300 4,600 2,950 2,790 100 1,370 1,800 1,250 3,000 750 920

수평형 (Horizontal Type)

모 델 명 A B C D E L W H PH BH F G J K h T
T1AH-S0045 660 490 535 545 660 2,890 950 1,250 1,115 100 300 340 370 650 - 370
T1AH-S0100 1,000 700 1,250 1,200 650 4,800 1,400 1,150 990 100 380 500 250 1,100 500 320
T1AH-S0150 1,000 700 1,400 1,300 650 5,050 1,450 1,300 1,140 100 455 600 350 1,150 600 470
T1AH-S0200 1,000 700 1,500 1,400 650 5,250 1,600 1,500 1,340 100 535 700 400 1,300 600 470
T1AH-S0250 1,000 700 1,500 1,550 650 5,400 1,800 1,600 1,440 100 535 700 450 1,500 600 470
T1AH-S0300 1,000 700 1,700 1,550 650 5,600 2,050 1,600 1,440 100 610 800 450 1,750 600 470
T1AH-S0350 1,000 700 1,700 1,650 650 5,700 2,350 1,600 1,440 100 610 800 450 2,050 600 470
T1AH-S0400 1,000 700 1,800 1,650 650 5,800 2,600 1,650 1,490 100 685 900 450 2,300 600 470
T1AH-S0450 1,000 700 1,800 1,850 650 6,000 2,950 1,750 1,590 100 685 900 450 2,650 600 470
T1AH-S0500 1,150 700 1,900 1,850 800 6,400 2,650 1,900 1,740 100 760 1,000 550 2,350 650 620
T1AH-S0600 1,150 700 2,050 1,950 800 6,650 2,650 2,200 2,040 100 840 1,100 650 2,350 650 620
T1AH-S0700 1,150 700 2,150 2,050 800 6,850 3,000 2,350 2,190 100 915 1,200 650 2,700 650 620
T1AH-S0800 1,150 700 2,150 2,150 800 6,950 3,350 2,350 2,190 100 915 1,200 700 3,000 650 720
T1AH-S0900 1,300 700 2,450 2,150 1,050 7,650 3,750 2,350 2,190 100 1,065 1,400 750 3,000 700 770
T1AH-S1000 1,300 700 2,450 2,400 1,050 7,900 4,100 2,450 2,290 100 1,065 1,400 850 3,000 700 770
T1AH-S1100 1,300 700 2,600 2,450 1,050 8,100 3,950 2,650 2,490 100 1,220 1,600 950 3,000 700 770
T1AH-S1200 1,450 700 2,600 2,450 1,200 8,400 4,250 2,650 2,490 100 1,220 1,600 1,000 3,000 750 920
T1AH-S1300 1,450 700 2,600 2,600 1,200 8,550 4,100 2,950 2,790 100 1,220 1,600 1,100 3,000 750 920
T1AH-S1400 1,450 700 2,600 2,600 1,200 8,550 4,350 2,950 2,790 100 1,220 1,600 1,200 3,000 750 920
T1AH-S1500 1,400 700 2,950 2,600 1,250 8,900 4,600 2,950 2,790 100 1,370 1,800 1,250 3,000 750 920